































платеж по ипотеке:
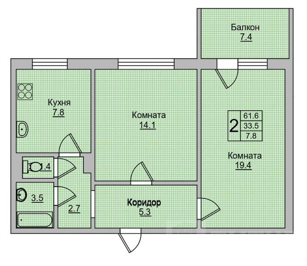
Площадь: 56.4/33.5/7.8
Этаж: 4/10
Стены: панельный
Состояние:
В продаже 2-х комнатная квартира на Стройгородке! Выполнен ремонт, комнаты изолированные, очень большая лоджия, теплый пол, можно использовать как дополнительную комнату или кабинет. Квартира не угловая, ТСЖ! Дом 2003г. консьерж, тихий двор, чистые ухоженные подъезды, облагороженная придомовая территория. Стройгородок/Военвед/ул. Таганрогская. Вся необходимая инфраструктура , рядом школа, два детских сада, филиал поликлиники № 41, рынок "Военвед", круглосуточная аптека и супермаркет "Магнит", торговый центр, остановка общественного транспорта. Отличное предложение! Покупая с нами, Вы получите: Гарантированную юридическую чистоту сделки - по 64 пунктам произведена проверка объекта.По факту совершения сделки будет выдано гарантийное свидетельство чистоты сделки с материальной ответственностью компании.Бесплатные консультации по всем объектам недвижимости!Сопровождение клиента от звонка до получения ключей!Оперативный показ ! Являемся партнерами крупных банков, преференции от банков-партнеров.
Тип дома: панельный
Жилой фонд: улучшенный
Общая площадь: 56.4 м²
Жилая площадь: 33.5 м²
Площадь кухни: 7.8 м²
Этаж: 4/10
Тип квартиры: изолированная
Жилых комнат: 2
Цена за квадратный метр: 116 071 р.
платеж по ипотеке
… руб. / мес
Первоначальный взнос:
… руб. (0%)
Срок кредита:
00 лет
| Банк | Ставка | Ежемесячный платеж |
|---|---|---|
| Уралсиб | 21.19 | — |
| Банк ДОМ.РФ | 21.0 | — |
| Газпромбанк | 23.8 | — |
| Сбербанк | 21.6 | — |
| Альфа банк | 22.9 | — |
| Совкомбанк | 21.24 | — |
| Промсвязьбанк | 23.0 | — |
| Банк Россия | 21.5 | — |
| Металлинвестбанк | 21.2 | — |
| Центр Инвест | 17.75 | — |
| Абсолют банк | 20.7 | — |
| ВТБ | 22.3 | — |
Кириленко Анна
Агент №6
Купить двухкомнатную квартиру (Стройгородок) за 6 500 000 рублей
Стройгородок,